Herunterladen Diese Seite drucken

Rotex RoCon M1 Bedienungsanleitung Seite 3

Vorschau ausblenden Andere Handbücher für RoCon M1:
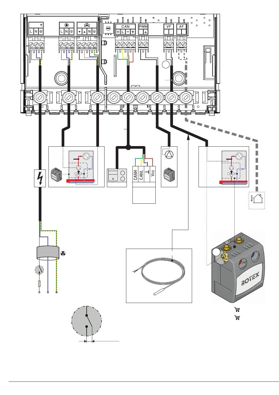
230 V
MK1/MK2
W
Si
Si ≤ 16A
L1
N PE
~230V / 50 Hz
.
KA RoCon M1 008.15 303 99_01 08/2013
CAN-Bus
t
MI
P
MI
MIX
M
RoCon U1
230 V
W
Z > 3mm
.
E1
E
P
MI
PWM
1
J13
MK2
HPSU compact
GCU compact
A1 BG-e
A1 BO-e
E
E1
E2
3/4
t
MI
P
MI
MIX
M
t
AU
E2
MK1
15 60 67
MK2
15 60 72
loading

Diese Anleitung auch für:

15 70 68