Herunterladen Inhalt Inhalt Diese Seite drucken

Endress+Hauser Liquiline System CA80AM Kurzanleitung Seite 14

Colorimetrischer analysator für ammonium
Vorschau ausblenden Andere Handbücher für Liquiline System CA80AM:
Inhaltsverzeichnis
Montage
4.1.3
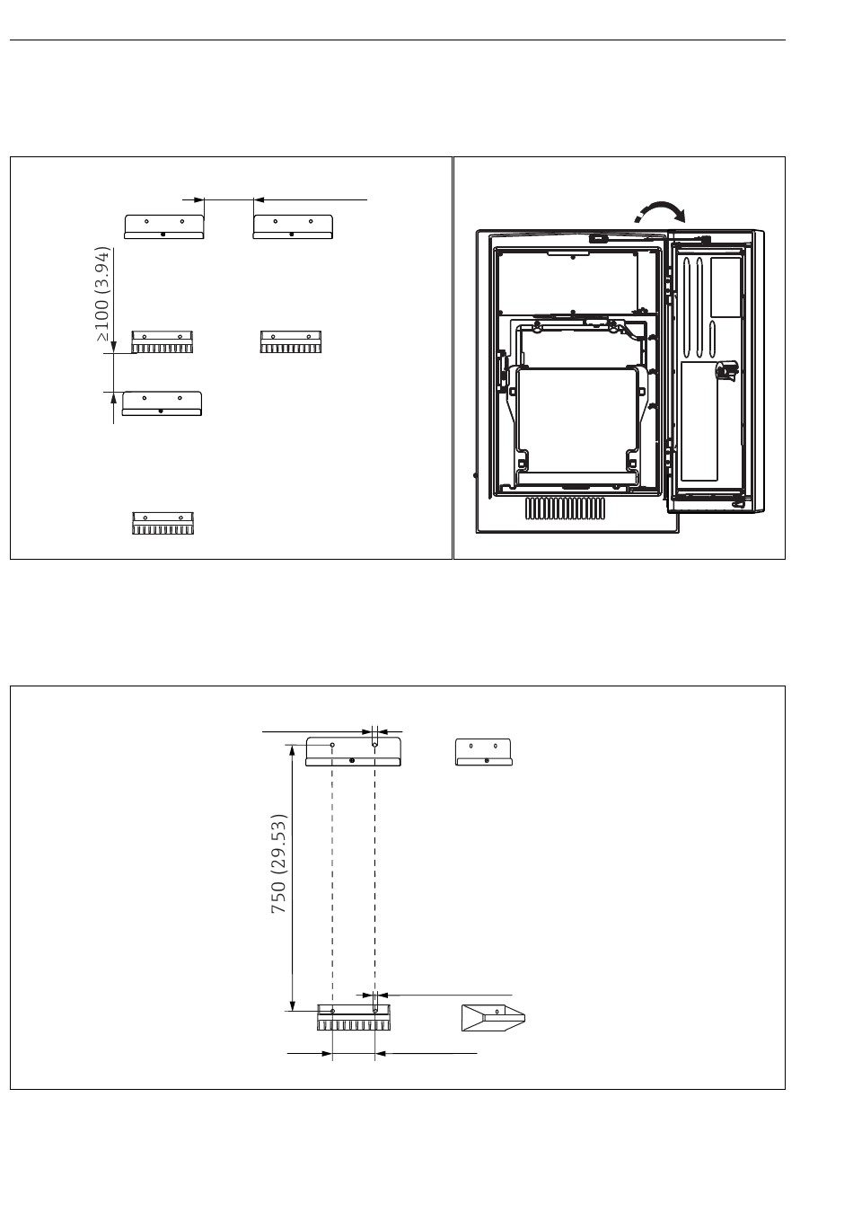
Montageabstände
Montageabstand Analysator
 5
Notwendiger Montageabstand. Maßeinheit mm
(in).
Montageabstand bei Ausführung für Wandmontage
 7
Abmessungen Halterung. Maßeinheit mm (in)
14
≥330(12.99)
A0036774
Ø 11 (0.43)
Ø 10.7 (0.42)
120 (4.72)
 6
Maximaler Öffnungswinkel
Liquiline System CA80AM
≤116 °
A0036775
A0036779
Endress+Hauser
Inhaltsverzeichnis
loading

Inhaltsverzeichnis