Herunterladen Inhalt Inhalt Diese Seite drucken

Dimplex FSD 48 Handbuch Seite 15

Elektro-speicherheizgerät
Inhaltsverzeichnis
NL
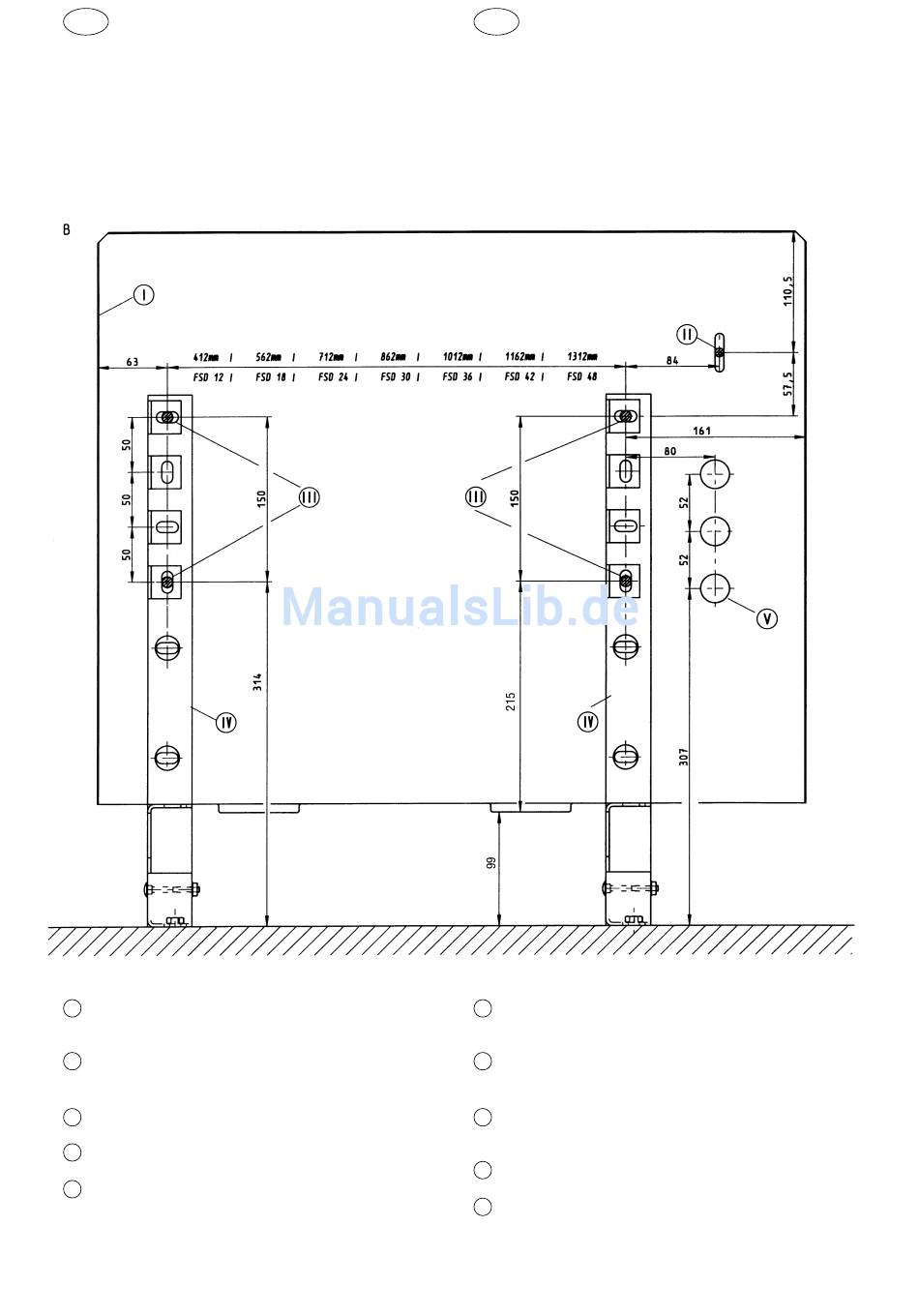
Boorsjabloon
A: Voor vloerinstallatie of wandmontage
(opgelet: controleer eerst de wandsterkte)
B: Voor wand/vloermontage
(combinatiesteun WKO 18 is nodig)
I
Markeer de buitenste hoek op de wand
(lokatiehulpje)
II
Boorgat 8 mm diameter 80 mm diep
(bevestigingsschroef)
III
Boor gaten 10 mm diameter ninimum diepte 130 mm
IV
Wandsteun
V
Kabelinvoer
E
Plantilla de perforación
A: Para instalación sobre el suedo o montaje en la pared
(Atención: Compruébese primero la fortaleza de la
pared)
B: Para montaje en pared/suelo
(Se requiere soporte combinado WKO 18)
I
Senálese la esquina exterior en la pared
(ayuda de localización)
II
Taladrense orificios de 8 mm de diámentro profundidad
80 mm (Tornillos de sujeción)
III
Taladrense orificios de 10 mm de diámetro profundidad
mínima 130 mm
IV
Soporte para montaje en la pared
V
Entradas de cable
15

Quicklinks ausblenden:

Inhaltsverzeichnis
loading

Diese Anleitung auch für:

Fsd 12

Inhaltsverzeichnis