Herunterladen Inhalt Inhalt Diese Seite drucken

Aprimatic LINEARE Installationsanleitung Seite 30

Zahnstangenantrieb
Inhaltsverzeichnis
Verfügbare Sprachen
  • DE

Verfügbare Sprachen

2
Características
2.4.
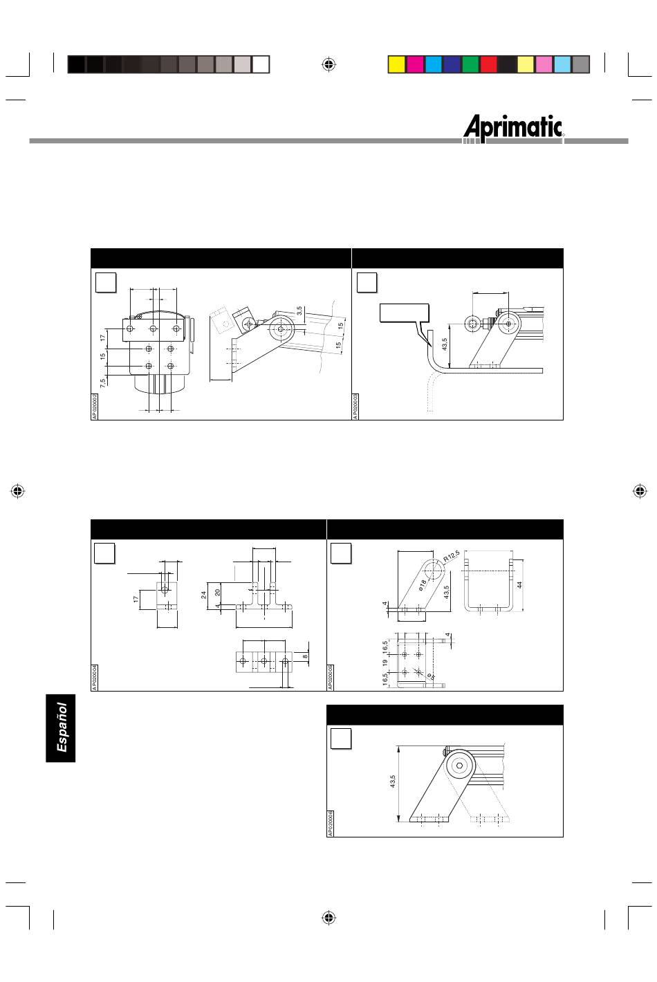
DIMENSIONES Y POSICIONES DE FIJACIÓN
Las imágenes abajo representadas indican las dimensiones y las posiciones para la fi jación del accio-
nador LINEARE por medio de los accesorios estándar en dotación. En el caso A, la instalación de la
automatización es complementar a la del contramarco, mientras que, en el caso B, la instalación se
efectúa sobre una consola de soporte (opcional) o un plano de apoyo existente.
INSTALACIÓN COMPLEMENTAR
A
19
19
7
9,5
9,5
2.4.1 Dimensiones de los accesorios
Las imágenes abajo representadas indican de manera detallada las dimensiones y el espacio ocupado
por los accesorios estándar presentes en el embalaje del accionador LINEARE. La fi gura A ilustra la
conexión anterior del contramarco; la fi gura B representa el soporte anterior.
CONEXIÓN ANTERIOR CONTRAMARCO
A
11
AGUJERO PASANTE ø6
18
Mediante la simple inversión del soporte, es posi-
ble fi jar el accionador en la parte posterior.
Lineare.indd
20
20,6
B
4,8
11
4,8
50
19
19
3 AGUJEROS ø5
C
30
30
INSTALACIÓN SOBRE CONSOLA
B
Consola
SOPORTE ANTERIOR
38,5
52
30
7,5
15
7,5
FIJACIÓN POSTERIOR
R
29
25/07/2001, 15.23
Inhaltsverzeichnis
loading

Inhaltsverzeichnis