Herunterladen Diese Seite drucken
Lewens Ancona Montageanleitung
Vorschau ausblenden Andere Handbücher für Ancona:
Für die Sicherheit von Personen ist es wichtig, diese Anweisung vor der Montage zu lesen und zu befolgen. Die Montageanleitung ist
aufzubewahren und muss bei eventuellem Verkauf der Markise an den neuen Besitzer weitergereicht werden.
1.1. Lieferumfang
1x Wintergartenbeschattung Typ: Ancona
2x Montagehaken Gehäuseprofil
* x Schienenhalter (Unterdach) oder Bild 2
* x 10er Montagefüße (Aufdach) oder Bild 2
* x Tuchstützedraht
1x Montageanleitung
1x E-Anschluss - und Einstellanleitung
1x Probelauf-/Programmierkabel
Bestellung)
* Stückzahl in Abhängigkeit von Breite und Ausfall
1.2. Allgemeines
Die Montage des Gesamtsystems hat durch einen
Fachbetrieb zu erfolgen.
Vor Ort müssen die bauseitigen Befestigungsmöglichkeiten
geprüft werden, um einen sicheren Halt für den Anbau der
Wintergartenbeschattung zu gewährleisten. Die Wahl des
Befestigungsmaterials
muss
Montageuntergrund erfolgen. Die Anlage wird ohne
Montagematerial geliefert.
Die Komponenten dieser Beschattung entsprechen den
z.Z. geltenden Anforderungen und Regeln der Technik.
Änderungen an der Konstruktion sind nur mit Zustimmung
der Lewens Sonnenschutz Systeme GmbH & Co. KG
erlaubt.
1.3. Qualifikation des Montageunternehmens
Einhaltung
des
Arbeitsschutzes
Betriebssicherheit
Umgang mit Leitern und Gerüsten
sicherer Transport und Lagerung
Umgang mit Werkzeugen und Maschinen
Beurteilung und Einbringen der Befestigungsmittel in
der vorhandenen Bausubstanz
Inbetriebnahme der Ancona und Unterweisung des
Nutzers
1.4. Befestigung und Hochziehen an Seilen
Muss die Unterglasmarkise in einem höheren Bereich mit
Hilfe von Seilen hochgezogen werden, so ist die Anlage,
aus der Verpackung zu nehmen,
die Transportseile so zu befestigen, daß die Anlage
nicht herausrutschen kann,
gleichmäßige Lastenverteilung (waagerechte Lage)
beim Hochziehen
1.5. Absturzsicherung
Bei
Arbeiten
in
großer
o
Sicherungen
von
Absturzgefahr zu treffen.
Leitern oder Gerüste müssen einen festen Stand und
sicheren Halt bieten.
2.0. benötigtes Werkzeug
Leiter/Gerüst
Wasserwaage
Richtschnur
Bandmaß
Bohrmaschine
und
Befestigungsuntergrund und -mittel)
3er , 5er, 6er Innensechskantschlüssel
10er Maul/Ringschlüssel
breiter Malerspachtel
(für Demontage Abdeckprofil Ausfallprofil)
Maul/Ringschlüssel für Befestigungsmittelgröße
Wichtige Sicherheitsanweisung !
Montageanleitung „Ancona"
(nur bei extra
nach
dem
örtlichen
u.
Höhe
sind
geeignete
Personen
hinsichtlich
Bohrer
(Auswahl
3.0. Montageschritte
3.1. Prüfen des Lieferumfangs auf Richtigkeit
3.2. Anzeichnen und Befestigen der Montagehalter
,Schienenhalter oder Montagefüße
3.3. Kabeldurchführung für elektrische Zuleitung bohren
(nur bei Motorantrieb)
3.4. Führungsschienen in die Aufnahmen am Gehäuse
einsetzen und sichern
3.5. Zugband monieren und spannen
3.6. Elektroinstallation ausführen
3.1. Prüfen des Lieferumfangs
Vor Beginn der Montage ist zu prüfen:
ob die, bei der Bestellung gemachten Angaben über
Farbe, Antriebsart (Motor od. Funkmotor) und
Antriebsseite, mit der Lieferung übereinstimmen
Anzahl und Richtigkeit der gelieferten Teile, siehe
Lieferumfang.
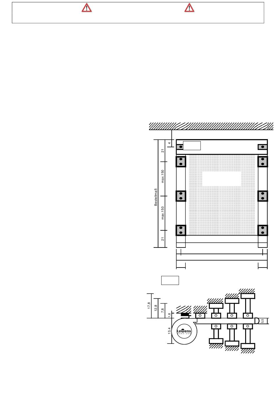
Luft von
Wand 5
der
Abb.
Unterdachmontageseite
einer
nach
Aufdachmontageseite
®
1
Abb.
Gehäuseseite
Darstellung für
Unterdachmontage
(Ansicht von oben/vorn)
Ausfallseite
2
Montageachsmaß Schienenhalter
Bestellmaß
4
8er
Montage-
Montage-
2
fuß
10er
Montage-
Montage-
fuß
2
4
13er
18er
Montage-
fuß
fuß
13er
18er
Montage-
fuß
fuß
1
loading

Inhaltszusammenfassung für Lewens Ancona

  • Seite 1 Abb. Gehäuseseite Die Komponenten dieser Beschattung entsprechen den z.Z. geltenden Anforderungen und Regeln der Technik. Änderungen an der Konstruktion sind nur mit Zustimmung der Lewens Sonnenschutz Systeme GmbH & Co. KG erlaubt. Darstellung für Unterdachmontage 1.3. Qualifikation des Montageunternehmens •...
  • Seite 2 Montagefuß 10er 13er 18er 12,6 17,6 13,2 152,0 18,2 23,2 Pos.1 Schienenhalter (Standartbefestigung Unterdachmontage) Pos.2 10er Montagefüße (Standartbefestigung Unterdachmont) Pos.3 8er / 13er / 18er Montagefuß Pos.4 Seitenbefestigung für Wandmontage inkl. S-Halter Pos.5 8er / 10er Montageverlängerung inkl. S-Halter Pos.6 Distanzplatte inkl. S-Halter Pos.7 Druckplatte Vetro-Montage inkl.
  • Seite 3 • Gehäuseprofil der Unterdachbeschattung in die • ziehen Sie alle Halter der Führungsschienen mit Montagehaken einhängen einem Innensechskantschüssel Gr.5 gleichmäßig fest • beide Führungsschienen am Gehäuseprofil • fahren Sie das Ausfallprofil ca. 40cm aus und aufsetzen montieren mitgelieferte • das Zugband muss sich während der Montage auf Innensechskantschrauben Gr.5 auf der Innenseite der Laufwagenseite befinden jeder Schiene (Gehäuseseite)
  • Seite 4: Linke Seite

    • • montieren Sie die Abdeckung der Umlenkung Zugband wird an der linken Feder von oben um nach dem Einlegen des Zugbandes sofort das Rad gelegt (Abb.3) und auf der rechten Rad- Feder von unten (Abb.4) linke Bandverlauf im Ausfallprofil Seite Abb.
  • Seite 5 • • Sicherungsschraube am Gleiter der Feder kpl. ab bestimmten Breiten oder Ausfällen ist die herausdrehen Montage eines Tuchstützdrahtes erforderlich • hierzu muss der Halter für den Draht im mittleren • Unterdachbeschattung steht jetzt unter Bereich auf gleicher Höhe eines Schienenhalters Spannung angebracht werden Wickelrichtung...
  • Seite 6 Technische Änderungen vorbehalten. Stand 07.2016 Montage-Ancona...