Herunterladen Diese Seite drucken

T&S B-0968 Installations- Und Wartungsanleitungen Seite 4

Atmospheric vacuum breakers
Vorschau ausblenden Andere Handbücher für B-0968:
Verfügbare Sprachen

Verfügbare Sprachen

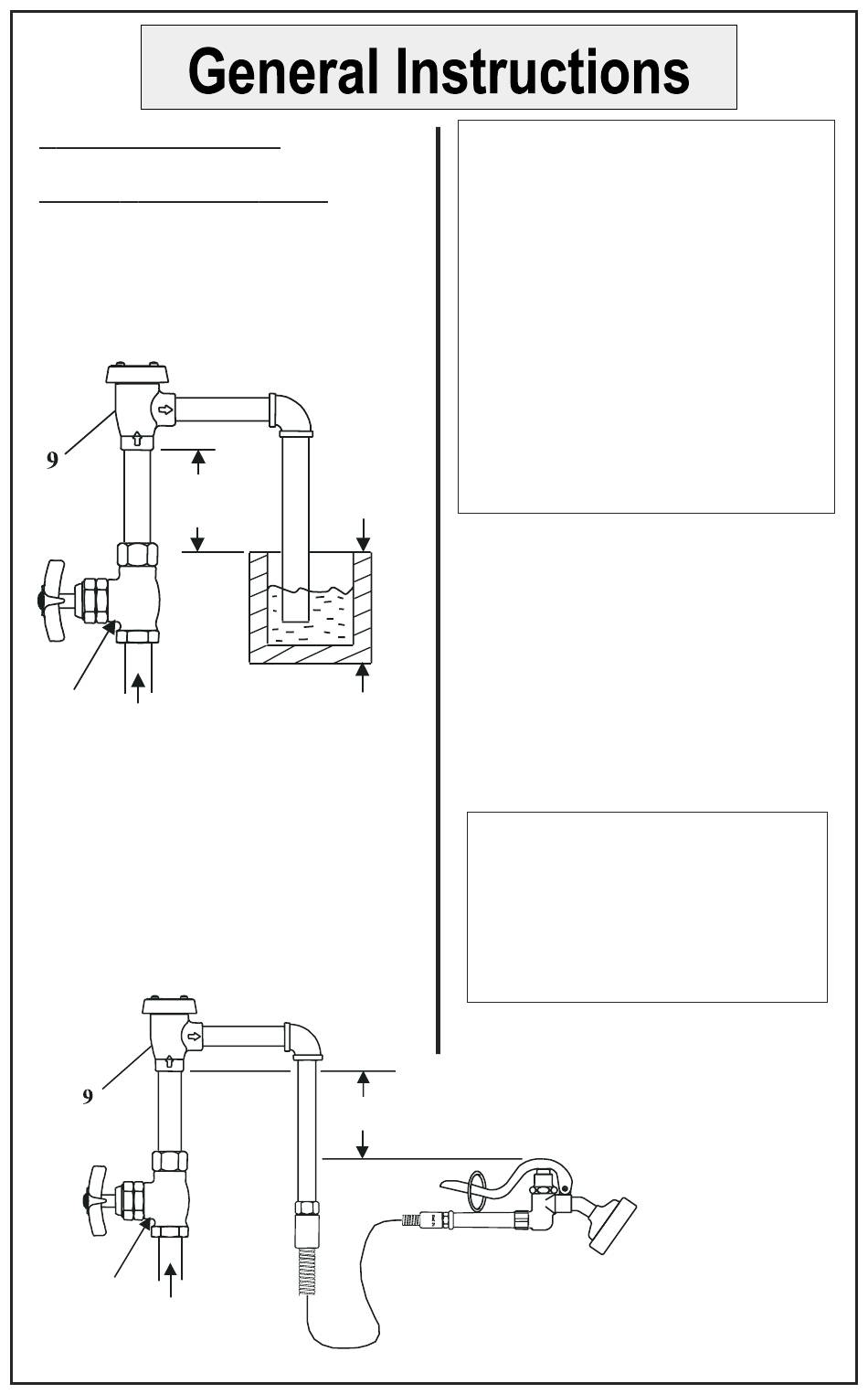
Typical Installation:
Single Vacuum Breaker
1. Vacuum breaker must be installed
with the supply connected to the
bottom and the outlet connected to
the appliance, as shown below:
not less than
6" (CIL)
supply
valve
2. The bottom of the no.9 should be
at least 6" above the flood rim of the
fixture or appliance.
3. When using a portable appliance,
no.9 should be installed at least 6"
above the highest point to which the
outlet can be raised, as shown:
supply
valve
overflow
or flood
rim
fixture or
appliance
highest position of appliance
not less than 6" (CIL)
Note: Where the device is a
separate unit, in the absence of a
Critical Installation Level (CIL)
mark, the extreme bottom of the
no.9 casting should be used to
determine its installed position.
Where the device is incorporated
in an outlet tube furnished by the
manufacturer, the extreme bottom
of the internal unit should be
noted on the outside of the tube by
a CIL line, for use in determining
its installed position.
4. The water supply valve must be
installed on the supply side (ahead)
of the vacuum breaker, and no shut-
off valve should be installed on the
outlet side (downstream).
5. The vacuum breaker should not be
subjected to continuous pressure for
more than twelve (12) hours.
Note: This device should not be
installed in a concealed or
inaccessible location, nor where
the venting water from the device
during its normal functioning
may be deemed objectionable.
loading

Diese Anleitung auch für:

B-0969