Herunterladen Inhalt Inhalt Diese Seite drucken

Sharp AN-52AG2 Bedienungsanleitung Seite 4

Inhaltsverzeichnis
Verfügbare Sprachen
  • DE

Verfügbare Sprachen

  • DEUTSCH, seite 38
必ずお守りください
液晶カラーテレビの設置には特別な技術
が必要ですので、必ず専門の取り付け工
事業者へご依頼ください。お客様による
工事は一切行わないでください。取り付
け不備、 取り扱い不備による事故、 損傷に
ついては、当社は責任を負いません。
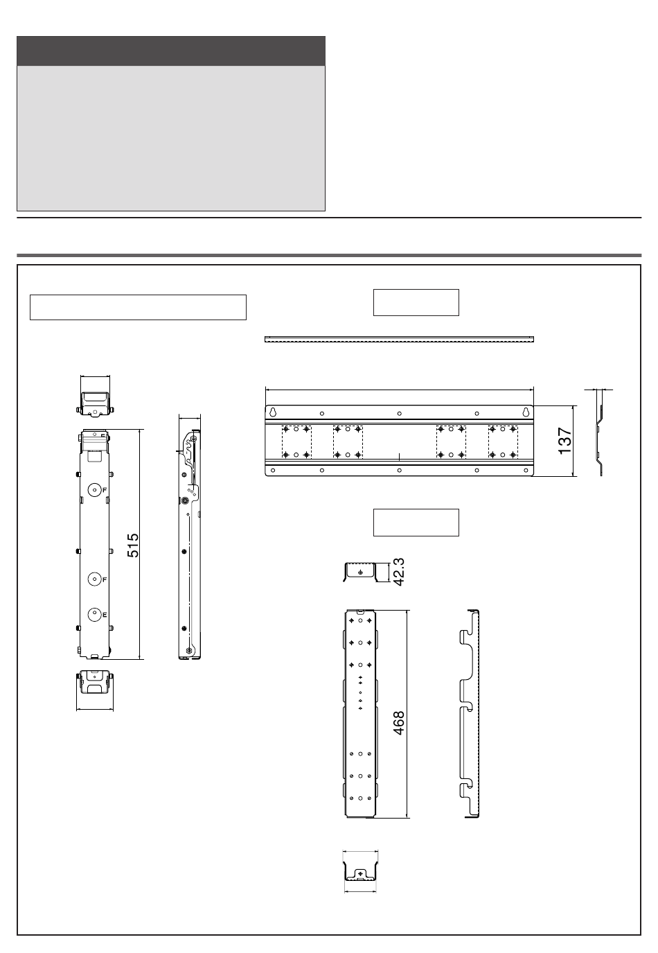
外形寸法図
壁掛け金具ユニット(左/右)
64.5
82.5
4
48
C
◎工事店様へ
・お客様の安全のため、取り付け場所の強度
には、液晶カラーテレビと壁掛け金具の荷
重に耐えるよう十分注意のうえ、設計施工
を行ってください。
・作業は必ず 2 名以上で行ってください。
・壁用金具に対する壁取付ねじは同梱されて
いません。壁に適合する市販のねじを選定
ください。
壁用金具 A
520
UP
D
D
壁用金具 B
A
B
B
A
77.4
69.4
10.5
C
単位:mm
Inhaltsverzeichnis
loading

Inhaltsverzeichnis