Herunterladen Inhalt Inhalt Diese Seite drucken

Notifier NFXI-ASD11 Kurzinstallationsanleitung Seite 33

Inhaltsverzeichnis
Verfügbare Sprachen
  • DE

Verfügbare Sprachen

  • DEUTSCH, seite 31
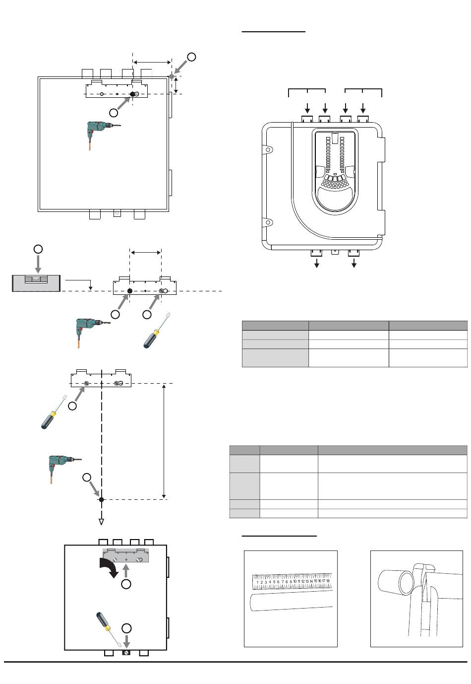
Abbildung 7: Reihenfolge (1 bis 9) zur Montage des Melders an
der Halterung
7a
7b
4
0.00
o
7c
6
7
7d
N200-102-00
1
99 mm
41
mm
2
90 mm
5
3
329 mm
8
9
Rohrkonfiguration
Abbildung 8 zeigt die auf dem Gerät vorhandenen Rohröffnungen.
Jeder Kanal der Einheit weist zwei Rohröffnungen auf, die T-förmig
miteinander verbunden sind. Bei Verwendung einer Einheit mit einem
Kanal besitzen die Löcher 3 und 4 keine Funktion. Die zur Installation
erforderlichen Löcher entnehmen Sie Tabelle 1:
1
KANAL 1
KANAL 1 (NICHT
VERWENDET
5
BEI EINHEIT MIT
GEMEINSAMER
KAMMER)
Tabelle 1: Rohröffnungen für jedes FAAST-LT-Modell
FAAST‐LT‐MODELL 
NFXI‐ASD11 
1 und/oder 2 
NFXI‐ASD12 
1 und/oder 2 
NFXI‐ASD22 
Kanal 1 – 1 und/oder 2 
Kanal 2 – 3 und/oder 4 
 
Hinweis 1: Nicht verwendete Rohröffnungen sollten verschlossen bleiben.
Hinweis 2: Es dürfen KEINESFALLS Rohre in die Rohröffnungen
geklebt werden.
Tabelle 1a: Maximal zulässige Anzahl der Rohröffnungen pro Kanal
Alle angegebenen Werte verwenden die höchste Empfindlichkeitsstufe
(Stufe 1).
KLASSE  ROHRLÄNGE (m) 
Einzelrohr: 
100 
Verzweigt: 
160 (2 x 80) 
Mit T‐Stück 
100 
80 
 
Installation der Rohre
1
3
2
3
4
KANAL 2 (FUNKTION NUR BEI
EINHEITEN MIT 2 KANÄLEN)
Abbildung 8:
Rohröffnungen
KANAL 2 (FUNKTION NUR BEI
EINHEITEN MIT 2 KANÄLEN
6
UND EINHEITEN MIT
GEMEINSAMER KAMMER)
LOCH EINLASSROHR 
LOCH AUSLASSROHR 
MAX. ANZAHL DER ÖFFNUNGEN PRO KANAL 
18 (5 x 2 mm, 6 x 2,5 mm, 3 x 3 mm, 3 x 3,5 mm 
und 1 x 4 mm) + 4 mm Endloch ohne Messung 
18 (2 x 9 Öffnungen) (3 x 2,5 mm, 6 x 3 mm) + 3 
mm Endloch ohne Messung 
6 (2 x 3,5 mm, 2 x 4 mm, 2 x 5 mm mit Endloch) 
3 (1 x 5 mm, 2 x 6 mm mit Endloch) 
2
I56-3947-202

Quicklinks ausblenden:

Inhaltsverzeichnis
loading

Diese Anleitung auch für:

Nfxi-asd12Nfxi-asd22

Inhaltsverzeichnis