Herunterladen Inhalt Inhalt Diese Seite drucken
Verfügbare Sprachen

Verfügbare Sprachen

V ZUG AG
Industriestrasse 66, Postfach 59, 6301 Zug
Tel. 041 767 67 67, Fax 041 767 61 61
vzug@vzug.ch, www.vzug.ch
Gültigkeitsbereich
Diese Installationsanleitung gilt für das Modell:
Typ
Modell-Nr.
KPi
772
Perfect (Tür integrierbar)
Elektrische Anschlüsse
Spannung
Nennaufnahme
230 V~ 50 Hz
0,75 A
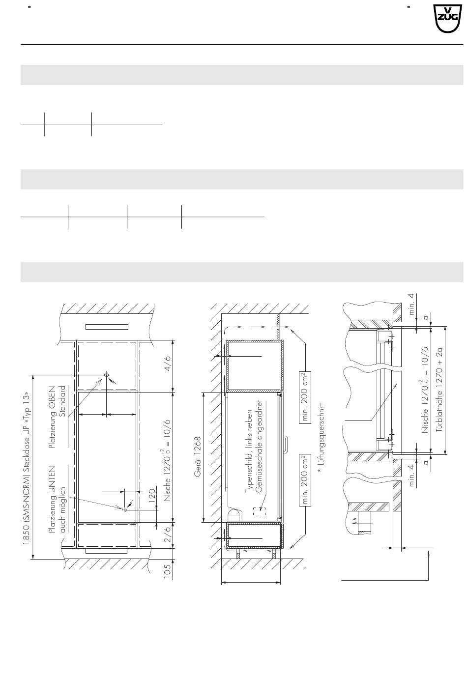
Einbau (Tür integrierbar)
=
100
* Für eine einwandfreie Belüftung ist eine Öffnung – oben und unten – innerhalb der Gerätebreite notwendig.
Nur Schattenfugen – auch wenn sie über mehrere Elemente verlaufen – sind nicht ausreichend.
Installationsanleitung
Kühlschrank Perfect 10/6
Einbau EURO 60
Modell
Absicherung
10 A
2,50 m mit Stecker «Typ 12»
=
Netzkabel
min. 50
min. 50
Nische
min. 580
J772.051 0
4.10.07 ZRE
1/6
Oberschrank
Türblatt
16–20
Bei Türblattdicke über
20 mm, siehe H7.0314
Inhaltsverzeichnis
loading

Inhaltszusammenfassung für V-ZUG Perfect 10/6

  • Seite 1 V ZUG AG Installationsanleitung J772.051 0 Industriestrasse 66, Postfach 59, 6301 Zug Kühlschrank Perfect 10/6 Tel. 041 767 67 67, Fax 041 767 61 61 4.10.07 ZRE Einbau EURO 60 vzug@vzug.ch, www.vzug.ch Gültigkeitsbereich Diese Installationsanleitung gilt für das Modell: Modell-Nr.
  • Seite 2: Installation

    V ZUG AG Installationsanleitung J772.051 0 Industriestrasse 66, Postfach 59, 6301 Zug Kühlschrank Perfect 10/6 Tel. 041 767 67 67, Fax 041 767 61 61 4.10.07 ZRE Einbau EURO 60 vzug@vzug.ch, www.vzug.ch Nische 560–568 Gerät Spalt 13–21 Holzleiste oder Füllprofil aus Ergänzungsset H7.1754,...

Inhaltsverzeichnis