Herunterladen Diese Seite drucken

Appleton PRE Serie Benutzung Seite 2

3
I
- I
NSTALLATION
NSTALLATION
FR
Le matériel doit être sélectionné conformément aux exigences définies dans la Directive
utilisateur 99/92/CE.
La zone d'installation doit être en adéquation avec la catégorie du produit.
L'installation du matériel doit être réalisée selon les prescriptions de la norme
d'installation EN/CEI 60079-14.
Le personnel intervenant doit être qualifié pour l'activité considérée (EN/CEI 60079-14
Annexe A).
L'indice de protection de l'enveloppe doit être choisi en fonction du lieu d'installation.
Le raccordement des conducteurs doit être réalisé selon les règles de l'art en tenant
compte de la densité de courant maximale admissible.
Ne procéder à aucune opération de perçage sur les enveloppes, celle-ci effectuée
sans notre accord formel nous dégagerait de toute responsabilité.
DE
Das Material muss entsprechend den in der Richtlinie für Betreiber 99/92/EG
festgelegten Anforderungen ausgewählt werden.
Der Einbaubereich muss der Kategorie des Produkts angemessen sein.
Der Einbau des Materials muss gemäß den Bestimmungen der Norm zur Errichtung
elektrischer Anlagen EN/IEC 60079-14 durchgeführt werden.
Das Einsatzpersonal muss für die jeweilige Tätigkeit qualifiziert sein (EN/IEC 60079-14
Anlage A).
Die geeignete IP-Schutzart des Gehäuses ist je nach Aufstellungsort zu wählen.
Die elektrischen Leitungen müssen ordnungsgemäß angesschlossen werden, dabel
muss die maximal zulässige Stromstärke berücksichtigt werden.
Explosionsgeschützte Betriebsmittel dürfen nicht angebohrt oder in sonst einer
Art und Weise bearbeitet werden. Wir übernehmen keine Haftung für ohne unsere
ausdrückliche Zustimmung ausgeführte Arbeiten.
PT
O material deve ser seleccionado consoante os requisitos definidos na Directiva
utilizador 99/92/CE.
A zona de instalação deve ser adequada à categoria do produto.
A instalação do material deve ser realizada segundo as prescrições da norma de
instalação EN/IEC 60079-14.
O pessoal interveniente deve ser qualificado para a actividade considerada (EN/IEC
60079-14 anexo A).
O grau de proteção da caixa deve ser selecionado de acordo com a área de instalação.
A ligação dos condutores deve ser realizada segundo as regras da arte tendo em conta
a densidade de corrente máxima admissível.
Não proceder a nenhuma operação de perfuração nas caixas, se esta for
efectuada sem o nosso acordo formal, anula a garantia.
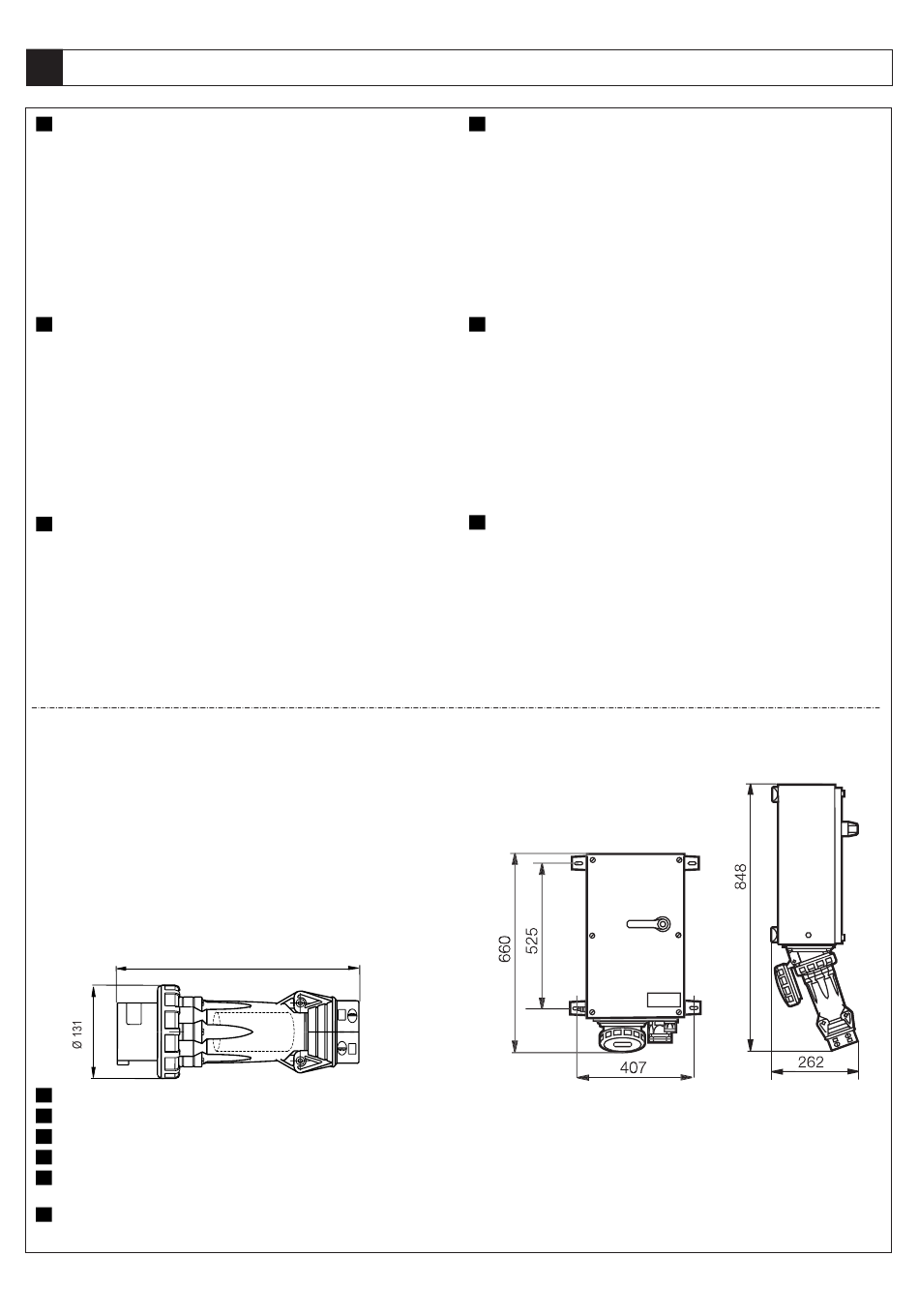
Côtes d'encombrement (mm)
Overall dimensions
Einbaumaße
(mm)
Cotas de dimensiones (mm)
Dimensões externas
(mm)
Quote di ingombro
Fiches
Plugs
Steker
Fichas
Plugues
Spine
FR
La prise de courant se fixe sur une surface plane en position verticale; à l'aide de 4 vis. Les entrées de câble sont situées sur la partie inférieure de la prise.
GB
The current outlet fixes onto a flat surface in its service position (vertical) using four screws. The cable entries are located on the lowen pant of the socket outlet.
DE
Die Steckdose ist mit 4 Schrauben auf einer ebenen senkrechten Fläche zu montieren. Kabeleinführung von unten.
ES
La toma de corriente se fija en una superficie plana. En su posición de trabajo (vertical); mediante 4 tornillos. Las entradas de cable se sitúan en la parte inferior de la toma.
PT
A tomada é fixada em uma superfície plana na posição de operação (vertical), utilizando-se de 4 parafusos cilíndricos com dimensão de 6mm. As entradas de
cabo ficam localizadas na parte inferior da tomada.
IT
La presa di corrente si fissa su una superficie piana. Nella sua posizione di lavoro (verticale), il fissaggio viene assicurato per mezzo di 4 viti. Le entrate del cavo sono situate
nella parte inferiore della presa.
- E
- M
- I
INBAU
ONTAJE
NSTALAÇÃO
(mm)
(mm)
340
- I
NSTALLAZIONE
GB
All equipment shall be selected in compliance with the requirements stipulated in
Directive 99/92/EC for users.
The product category shall match the installation zone.
All hardware shall be installed as stipulated under electrical installations standard EN/IEC
60079-14.
All personnel involved in the installation process shall be qualified for the roles performed
(EN/IEC 60079-14 Annexe A).
The protection index for the enclosure must be selected with regard to the area of
installation.
Equipment must be connected as stipulated by the regulations in force in accordance with
the maximum permissible current-carrying capacity.
We shall be absolved from all responsibility for drilling operations performed on
enclosures without our formal consent.
ES
El material debe seleccionarse de acuerdo con las exigencias definidas en la
Directiva del usuario 99/92/CE.
La zona de instalación debe estar en adecuación con la categoría del producto.
La instalación del material debe realizarse según las prescripciones de la norma de
instalación EN/IEC 60079-14.
El personal que interviene debe estar cualificado para la actividad en cuestión (EN/IEC
60079-14 anexo A).
El índice de protección del revestimiento se debe escoger en función del lugar de
instalación.
La conexión de los conductores debe realizarse según las reglas del Art teniendo en
cuenta la densidad de corriente máxima admisible.
No proceder a ninguna operación de perforación sobre los envolventes, aquella
realizada sin nuestro acuerdo formal nos deja fuera de cualquier responsabilidad.
IT
I dispositivi devono essere selezionati in conformità agli obblighi definiti nella Direttiva
99/92/CE.
La zona di installazione deve essere conforme alla categoria del prodotto.
Tutta la circuiteria deve essere installata secondo le prescrizioni della norma sugli appa-
recchi elettrici EN/IEC 60079-14.
Il personale addetto deve essere qualificato per l'attività svolta (EN/IEC 60079-14 Allegato A).
Tutti i conduttori devono essere collegati a regola d'arte tenendo conto della capacità di
corrente massima ammissibile.
Si declina qualsiasi responsabilità per interventi di perforatura sugli involucri ese-
guiti senza il nostro consenso formale.
Socles
Socket outlets
Steckdosen
Tomas
Tomadas
Prese
2/5
loading

Diese Anleitung auch für:

Atx pre 125a