Anmelden
Hochladen
Herunterladen
Inhalt
Inhalt
Zu meinen Handbüchern
Löschen
Teilen
URL dieser Seite:
HTML-Link:
Lesezeichen hinzufügen
Hinzufügen
Handbuch wird automatisch zu "Meine Handbücher" hinzugefügt
Diese Seite drucken
×
Lesezeichen wurde hinzugefügt
×
Zu meinen Handbüchern hinzugefügt
Anleitungen
Marken
Move Anleitungen
Steuerungsystem
MOVE Si-GA
Anwenderhandbuch
Gehäusebohrbild - Move Si-Ga Anwenderhandbuch
Satelliten-einheit
Vorschau ausblenden
Andere Handbücher für MOVE Si-GA
:
Anwenderhandbuch
(73 Seiten)
,
Anwenderhandbuch
(53 Seiten)
,
Anwenderhandbuch
(53 Seiten)
1
2
Inhalt
3
4
5
6
7
8
9
10
11
12
13
14
15
16
17
18
19
20
21
22
23
24
25
26
27
28
29
30
31
32
33
34
35
36
37
38
39
40
41
42
43
44
45
46
47
48
49
50
51
52
53
54
55
56
57
58
59
60
61
62
Seite
von
62
Vorwärts
/
62
Inhalt
Inhaltsverzeichnis
Lesezeichen
Inhaltsverzeichnis
Technische Daten
MOVE-CabinetIO-02a
4.3.7
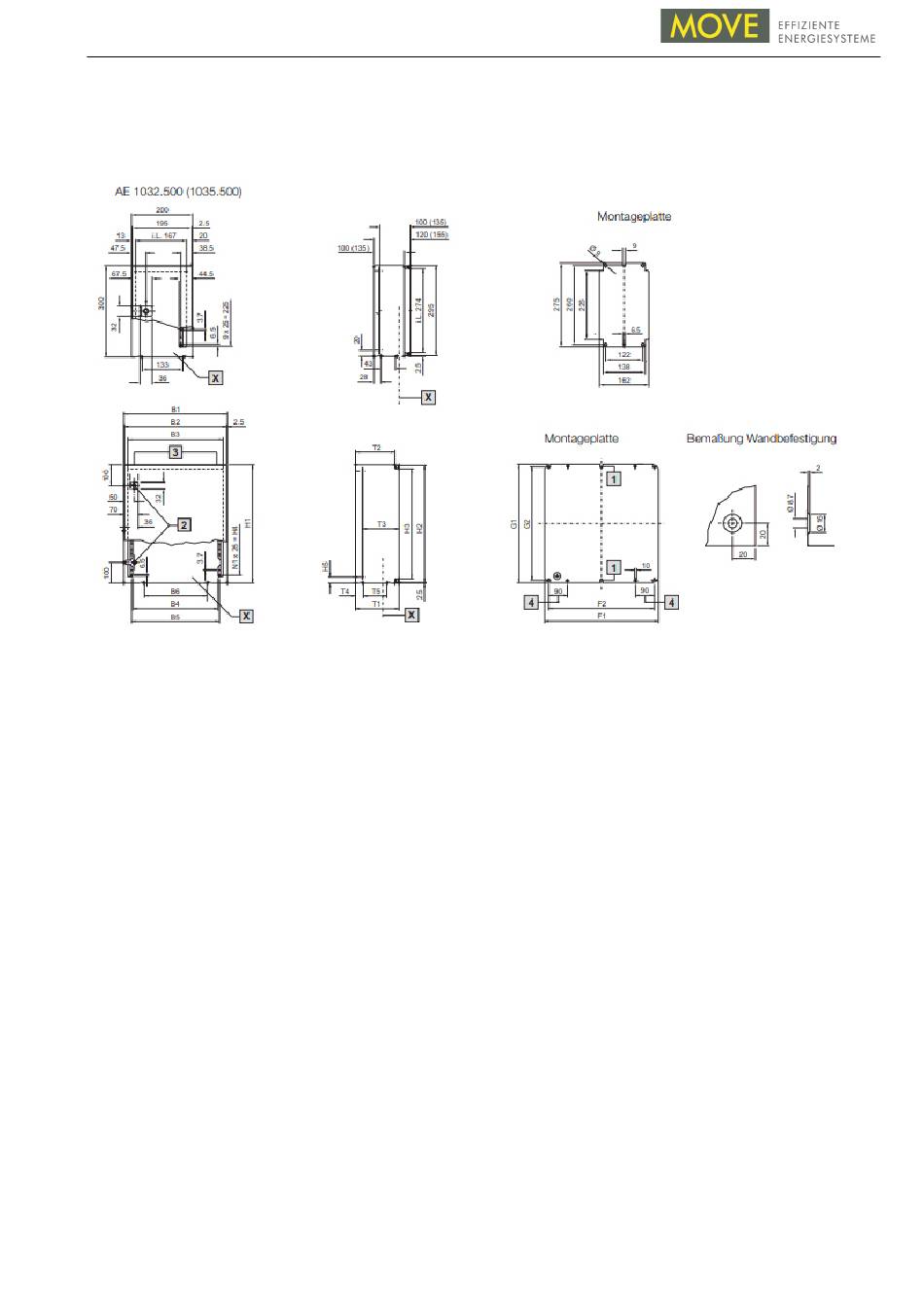
Gehäusebohrbild
Zur Montage bitte folgendes Bohrbild verwenden (Maße siehe Punktmarkierung unten)
Build:20201119-173513-7056435afo
Angaben unverbindlich. Änderungen vorbehalten.
Seite 52 von 62
Inhalt
sverzeichnis
Vorherige
Seite
Nächste
Seite
1
...
50
51
52
53
54
55
56
57
Inhaltsverzeichnis
Verwandte Anleitungen für Move MOVE Si-GA
Steuerungsystem Move MOVE Si-GA Anwenderhandbuch
Zentraleinheit (73 Seiten)
Steuerungsystem Move Si-GA Anwenderhandbuch
Satelliten-einheit (56 Seiten)
Steuerungsystem Move MOVE Si-GA Anwenderhandbuch
Zentraleinheit (53 Seiten)
Steuerungsystem Move MOVE Si-GA Anwenderhandbuch
Satelliten-einheit (53 Seiten)
Steuerungsystem Move CabinetHMI-02b Technisches Handbuch
Zentraleinheit für energiesteuerung und -erfassung move data (71 Seiten)
Verwandte Inhalte für Move MOVE Si-GA
MOVE Si-GA Gehäusebohrbild
Move MOVE Si-GA
MOVE Si-GA Gehäusebohrbild
Move MOVE Si-GA
CabinetHMI-02b Gehäusebohrbild
Move CabinetHMI-02b
Si-GA Gehäusebohrbild
Move Si-GA
MOVE Si-GA Gehäusebohrbild
Move MOVE Si-GA
Diese Anleitung auch für:
Move-cabinetio-02a
Inhaltsverzeichnis
Drucken
Lesezeichen umbenennen
Lesezeichen löschen?
Möchten Sie es aus Ihren Handbüchern löschen?
Anmelden
Anmelden
ODER
Mit Facebook anmelden
Mit Google anmelden
Anleitung hochladen
Von PC hochladen
Von URL hochladen