Herunterladen Inhalt Inhalt Diese Seite drucken

Γνωριζοντασ Το Ψυγειο - Inventor Rt49-84B-Bs Bedienungsanleitung

Inhaltsverzeichnis
Verfügbare Sprachen
  • DE

Verfügbare Sprachen

  • DEUTSCH, seite 32
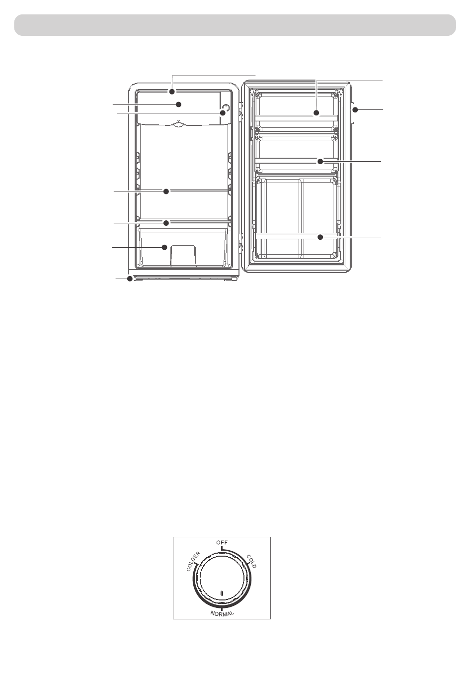
8. ΓΝΩΡΙΖΟΝΤΑΣ ΤΟ ΨΥΓΕΙΟ
Μικρή πόρτα
Θερμοστάτης
Γυάλινο ράφι
Γυάλινο ράφι
Συρτάρι για
φρούτα και
λαχανικά
Ποδαράκια
ρυθμιζόμενα
Όλες οι εικόνες στο παρόν εγχειρίδιο εξυπηρετούν επεξηγηματικούς σκοπούς. Το προϊόν
που προμηθευτήκατε μπορεί να εμφανίζει ορισμένες διαφορές ως προς το σχήμα, ωστόσο
οι λειτουργίες και τα χαρακτηριστικά παραμένουν ίδια.
• Αυτό το ψυγείο είναι κατάλληλο για αποθήκευση φρούτων και λαχανικών, ποτών και
άλλων προϊόντων. Τα θερμαινόμενα είδη, όπως τα μαγειρεμένα τρόφιμα, δεν πρέπει να
τοποθετούνται στο ψυγείο. Αφήστε ένα χρονικό διάστημα για να κρυώσουν πριν από την
αποθήκευση.
• Συνιστάται τα προϊόντα που τοποθετούνται να είναι τοποθετημένα σε πλαστική
συσκευασία (τάπερ) πριν από την αποθήκευση.
• Συνιστάται η τοποθέτηση ποτών και άλλων αναψυκτικών στα ράφια της πόρτας.
• Ο Θάλαμος ελαφριάς ψύξης ειναι ειδικά σχεδιασμένος για την σύντομη συντήρηση
κατεψυγμένων τροφίμων ή για την γρήγορη ψύξη τροφίμων. Δεν έχει
δυνατότητες κατάψυξης.
Ρύθμιση Θερμοκρασίας Θερμοστάτη
Μόλις ενεργοποιηθεί το ψυγείο, χρησιμοποιήστε το μηχανικό θερμοστάτη για να ρυθμίσετε
τα επίπεδα της θερμοκρασίας. Το "Cold" είναι η χαμηλότερη (θερμότερη) ρύθμιση ενώ το
"Colder" είναι η ψυχρότερη ρύθμιση. Το" OFF "θα σβήσει τη μονάδα.
Θάλαμος ελαφριάς ψύξης
24
Ράφι Πόρτας
Χερούλι πόρτας
Ράφι Πόρτας
Ράφι Πόρτας
Inhaltsverzeichnis
loading

Diese Anleitung auch für:

Rt49-84b

Inhaltsverzeichnis