Herunterladen Inhalt Inhalt Diese Seite drucken

Instalación Típica - T&S B-0969-Rk01 Bedienungsanleitung

Vorschau ausblenden Andere Handbücher für B-0969-RK01:
Inhaltsverzeichnis
Instruccione Generales
Instalación Típica:
Anti-sifón singular
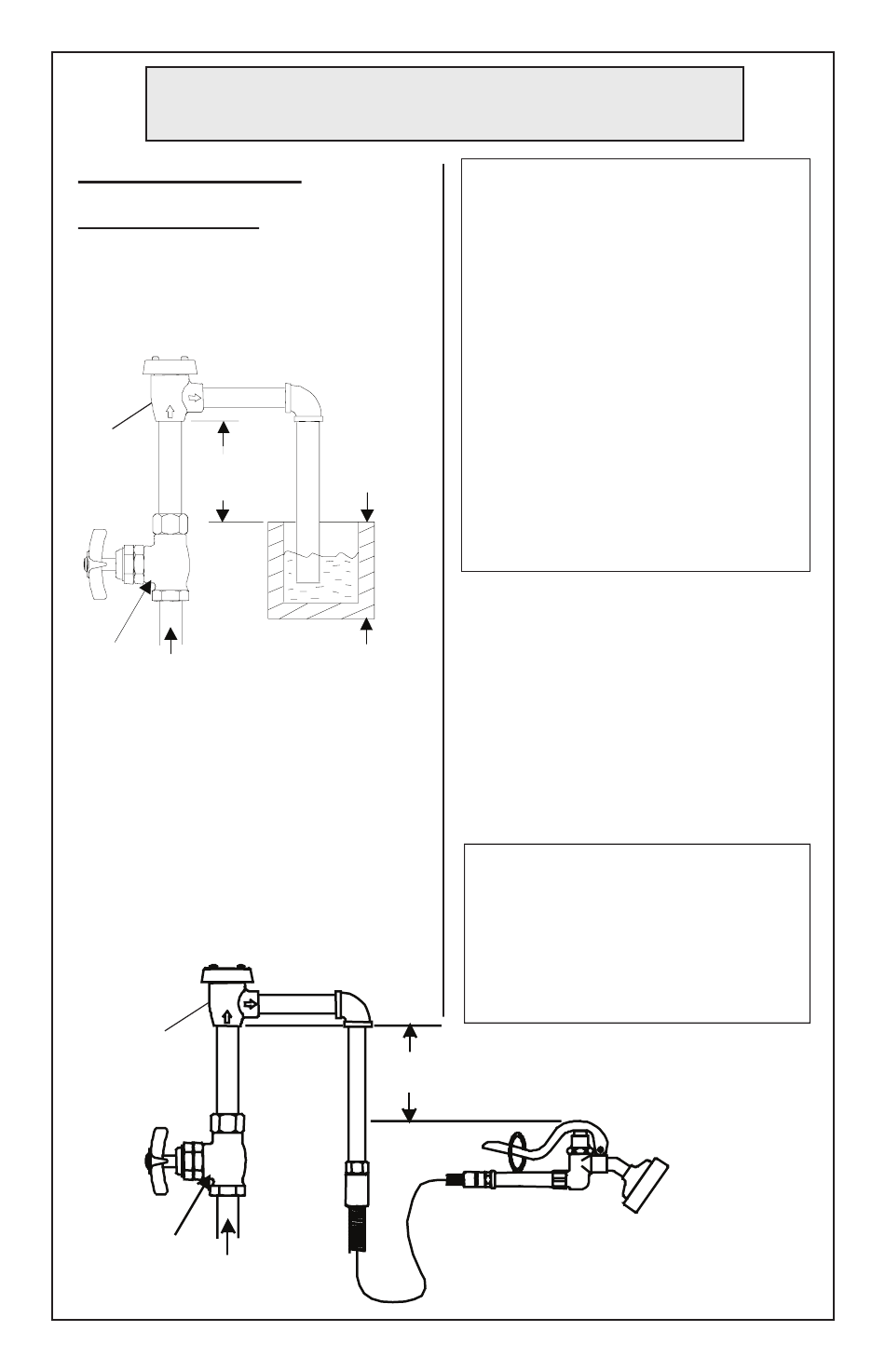
1. La válvula anti-sifón tiene que ser
instalada, con la fuente surtidora en la
parte posterior y la salida conectada a
la aplicación, como se muestra abajo:
8
No menos de
15.24cm(CIL)
Válvula Surti-
dora
2. El lado posterior de la parte No.8
debe ser por lo mínimo 15.24cm
sobre el caño de reboso del accesorio
ó aplicación.
3. Cuando esta utilizando una
aplicación portable, No.8 debe ser
instalada por lo mínimo 15.24cm
sobre el punto más alto en que se
pueda levantar la salida, como esta
demostrado:
8
Válvula
surtidora
Nota: Donde el aparato sea una
unidad separada, en la ausencia
de la marca (CIL) que signifi ca
nivel crítico de instalación, el lado
extremo posterior de la parte No.8
debe ser utilizado para determinar
la posición de instalación. Donde
el aparato sea incorporado en
un tubo de salida surtido por la
factoría, el lado extremo poste-
Derrame
rior de la unidad interna debe ser
ó caño de
señalada en la parte de afuera del
reboso
tubo por una línea de CIL, para
uso en determinar su posición de
instalación.
4. La válvula de surtido tiene que
estar instalada en el lado del surtido
(adelante) de la válvula anti-sifón y
Accesorio ó
aplicación
ninguna válvula de detención debe
ser instalada en el lado de salida
(abajo de la corriente).
5. La válvula anti-sifón no debe ser
sometida a presión continua por
más de doce (12) horas.
Nota: Este aparato no debe ser
instalado en un sitio escondido
o inaccesible, tampoco donde la
salida de agua del aparato durante
su función normal sea juzgado
perjudicial.
Posición máxima de aplicación no
menos de 15.24cm (CIL)
6
Inhaltsverzeichnis
loading

Diese Anleitung auch für:

B-0968-rk01B-0969B-0968

Inhaltsverzeichnis