Herunterladen Inhalt Inhalt Diese Seite drucken
Inhaltsverzeichnis
A
B
1
+
+
3
C
D
C
2
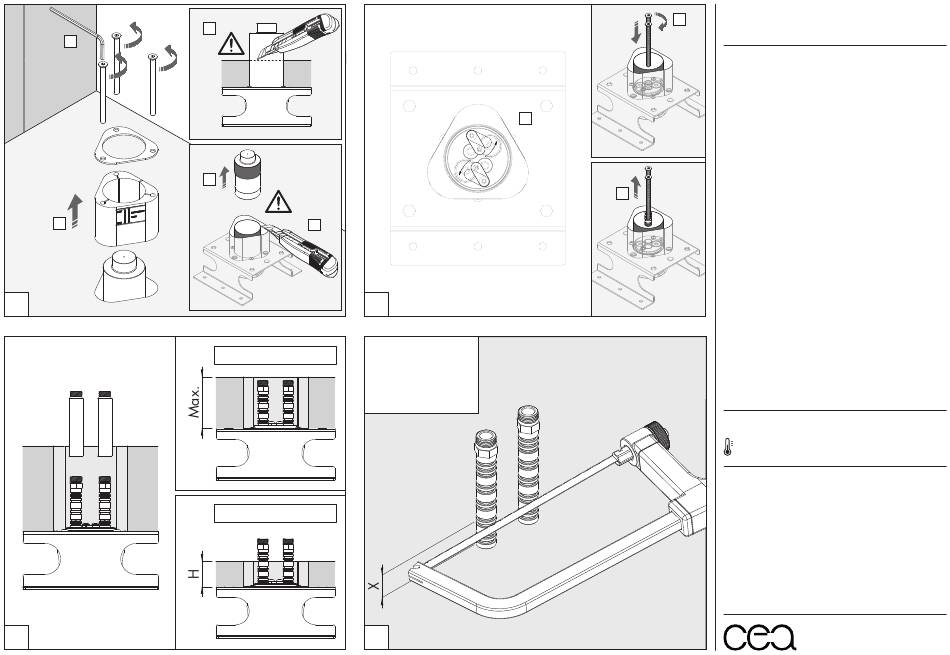
Min. 31,5 mm
Max. 56,5 mm
H = quota da rilevare
/ height to be measured
4
A
X = 67 - H
X = quota da tagliare
/ height to be cut
GRA24
B
AVVERTENZE TECNICHE
Risciacquare bene le tubazioni prima del montaggio ed evitare
sbalzi di pressione fra i raccordi d'acqua fredda e d'acqua calda.
In caso di pressioni statiche superiori a 5 bar si raccomanda
l'installazione di un riduttore di pressione per evitare danni alla
cartuccia.
TECHNICAL WARNINGS
The pipes have to be rinsed thoroughly before installation.
Avoid pressure differences between hot and cold water supply.
Use of a pressure reducer when static pressure is higher than 5
bar to avoid dammage of the cartridge.
C

TECHNISCHE WARNUNG

Spülen Sie die Leitungen vor dem Einbau und verhindern
Sie Wasserdruckwechsel zwischen kalt und warm
Wasserverbindungen. Wenn Wasserddruck größer als 5 bar ist,
bitte reduzieren Sie den Systemdruck, um Beschädigung der
Kartusche zu verhindern.
ADVERTENCIA TÉCNICA
Los tubos tienen que ser enjuagados a fondo antes de la
instalación. Evitar grandes diferencias de presión entre las
conexiones de agua caliente y fría. En caso de presión estática
mayor de 5 bar, se recomienda el uso de un adaptador de presión
para evitar daños en el cartucho.
ADVERTISSEMENTS TECHNIQUES
Rincer les tuyaux avant l'installation. Eviter des grandes
différences de pression entre l'eau froide et chaude.
En cas de pressions statique de plus de 5 bar, nous vous
recommandons d'installer un réducteur de pression pour éviter
des dommages à la cartouche.
TEMPERATURA DI ESERCIZIO / WORKING TEMPERATURE
max. 70 °C
max. 158 °F
_ REV13
ceadesign.it
Inhaltsverzeichnis
loading

Diese Anleitung auch für:

Gradi gra24

Inhaltsverzeichnis