Herunterladen Inhalt Inhalt Diese Seite drucken

Anschluss An Das Stromnetz - Regulus Ett-F2 Installation Und Verwendung

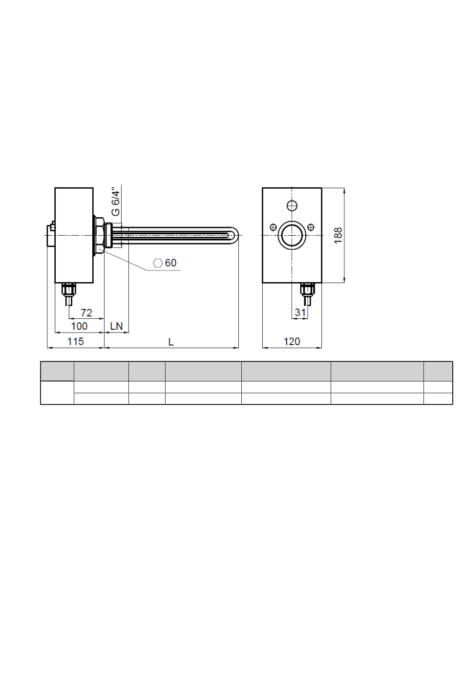
Heizpatrone
Inhaltsverzeichnis
2 - Heizpatrone mit Thermostatkopf,
dreiphasig mit festem Anschluss
2.1 - Technische Beschreibung
Die elektrische Heizpatrone besteht aus einem vernickelten Heizelement mit einem Außengewinde G 6/4",
einem betriebsfähigen Kapillarthermostat, der im Bereich von 0 ± 5 °C bis 90 ± 3 °C einstellbar ist (zum
Schutz vor eventuellem Einfrieren ist die untere Temperatur werkseitig auf ca. 15 °C und für den Einsatz
in Warmwasserspeichern, die obere Temperatur auf 60 °C, begrenzt). Mit einer Schaltdifferenz von 5 ± 1,5 °C,
mit einem Sicherheits-Kapillarthermostat mit manuellem Reset, mit einer Einstellung von 99 °C, mit einer
Einstelltoleranz von +0 °C, -6 °C, einem Netzkabel von 7 x 2,5 mm² und Kontrollleuchten zur Signalisierung des
Status der Heizpatrone. Die Länge des Zuleitungskabels beträgt 2 m.
2.2 - Maße
Typennummer
ETT-F2-3.0
3×230 V
ETT-F2-5.0

2.3 - Anschluss an das Stromnetz

Die elektrische Heizpatrone wird mit einem Festanschluss an den Klemmenkasten oder an den Verteiler
des 3/N/PE AC 400/230V-Stromnetzes angeschlossen. Die Montage muss entsprechend den geltenden
Vorschriften und Normen durch einen Fachbetrieb oder eine ausgebildete Fachkraft erfolgen. Der mit „HDO"
gekennzeichnete Draht ist für die Steuerung der Heizpatrone über „Niedertarif - NT" vorgesehen. Wenn dieser
Anschluss nicht verwendet wird, müssen die beiden blauen Adern (N und HDO) im Anschlussklemmenkasten
oder im Schaltschrank miteinander verbunden werden. Der mit Steuerung (L) gekennzeichnete Draht dient zur
Steuerung der Heizpatrone durch Regelung des Heizsystems. Dieser Draht wird an die vom Regler geschaltete
Phase angeschlossen. In diesem Fall muss am Thermostatknopf eine höhere Temperatur eingestellt werden,
als am Regler eingestellt ist. Wenn dieser Anschluss nicht verwendet wird, muss dieser Leiter zusammen mit
dem Phasenleiter L1 im Anschlussklemmenkasten oder im Schaltschrank angeschlossen werden.
REGULUS - el. Heizpatrone - www.regulus-waermetechnik.de
Leistung
Elektrischer Anschluss
[kW]
3
3/N/PE AC 230V
5
3/N/PE AC 230V
LN-nicht heizendes Ende
[mm]
180
180
L-Länge der Heizpatrone
[mm]
370
20232
500
20234
Code
3
Inhaltsverzeichnis
loading

Inhaltsverzeichnis