Herunterladen Diese Seite drucken
ET
ELCOM.
Adr. 0/E
-
V
W
a
b
R
JP
Einstrang Video
Single line video
ET
ELCOM.
Adr. 0/1
-
V
W
a
b
R
JP
ET
ELCOM.
Adr. 0/0
-
a
b
R
V
W
JP
F
Türelektronik
E
doorspeaker
D
C
ON
B
A
1
2
3
4
9
8
W
7
V
-
6
5
+
4
b
3
a
2
1
L
0
b
a
G
T
G
T
Steckverbinder
12VAC
TÖ-17
ELCOM.
b
a
Adr. 0/2
R
ET
-
JP
+
W
V
Sternverdrahtung Video
star topology video
ELCOM.
b
a
Adr. 0/1
R
ET
-
JP
+
W
V
ELCOM.
b
ET
a
R
Adr. 0/0
-
JP
+
W
V
F
Türelektronik
E
doorspeaker
D
C
ON
B
A
1
2
3
4
9
8
W
7
V
-
6
5
+
4
b
3
a
2
1
L
0
b
a
G
T
G
T
Steckverbinder
12VAC
TÖ-17
Mehrstrang Video
Multiple line video
Türelektronik
-
N
doorspeaker
NGV-860
230 V~
+
L
ON
-
1
2
3
4
+
BSV-200
b
8
a
7
6
(auch BSV-100 einsetzbar)
(BSV-100 can also be used)
5
4
N
3
NTR-812
230 V~
L
2
1
0
G
G
Steckverbinder
12VAC
TÖ-17
Beschreibung BSV-200
Description BSV-200
BUS
Anschluss am NGV-860:
Connection to NGV-860:
JP
V
W
BVV-203
V
W
V
V
IN
W
W
EN60950-1
NGV-860
INPUT: 0.32A 50/60Hz
230VAC
DC OK
L N
-
N
NGV-860
230 V~
+
L
-
+
L N
BSV-200
b
a
(auch BSV-100 einsetzbar)
(BSV-100 can also be used)
230V~
N
NTR-812
230 V~
L
am letzten Telefon JP gesteckt! / Video line termination (JP) in the last intercom!
ET
ET
JP
-
-
a
b
R
a
b
R
V
W
V
W
V
W
ET
ET
JP
-
-
V
W
a
b
R
V
W
a
b
R
V
W
ET
ET
JP
-
-
V
W
a
b
R
V
W
a
b
R
V
W
Türelektronik
doorspeaker
ON
1
2
3
4
W
8
W
V
7
V
-
-
6
+
5
+
b
4
b
a
3
a
2
L
1
L
b
0
b
a
a
T
G
T
T
G
T
Steckverbinder
NTR-812
12VAC
TÖ-17
a/b
+/-
2
1
3
a b
37-10
ta 50°C
IN
OK / Err
OUT
15VDC
(gn) (rt)
i2-BUS
Netzgerät Video
Power Supply
ELCOM BSV-200
Artikel-Nr. 231.410.6
i2-BUS Strang-Versorgung
OUTPUT:
ADJ
15VDC 2.0A 30W
Artikel-Nr. 170.412.0
Input: 15VDC / I ~ 2 x I
IN
OUT
Output: 17-22VDC / 300mA / 750mA
cont
(30Sec)
+ +
Achtung / Attention
ET
-
a
b
R
Hinweise und Vorschriften
des Systemhandbuchs beachten!
Note Instructions and references
ET
of the system manual!
-
a
b
R
Für Videosignal (v/w) unbedingt beachten:
Stichleitungen oder Abzweigungen sind
ohne Videoverteiler nicht zulässig!
Important for video signal (v/w) :
ET
Branch lines without a video distributor
are not allowed!
-
a
b
R
Bei eventuellen Videovorbereitungen
beachten: Videoleitungen (v/w) ohne
100 Ohm Leitungsabschluss dürfen
JP
nicht angeschlossen werden!
V
Note If you have video in preparation:
W
Video lines (v/w) without 100 Ohm line
V
BVV-203
termination are not allowed!
W
V
V
IN
W
W
b
BVU-100
Legende/Key:
a
V
OUT
W
V
CAM
ON
W
Beleuchtung der Klingeltaster
V
IN
1 2 3 4
W
backlight for call button
verseiltes Adernpaar I-Y(ST)Y
-
N
twisted pair
NGV-860
230 V~
+
L
ET - Etagenruftaster
-
ET - Storey call button
+
BSV-200
b
a
Videoabschluss 100 Ohm
(auch BSV-100 einsetzbar)
Video line termination 100 Ohm
(BSV-100 can also be used)
N
JP
NTR-812
230 V~
L
JP
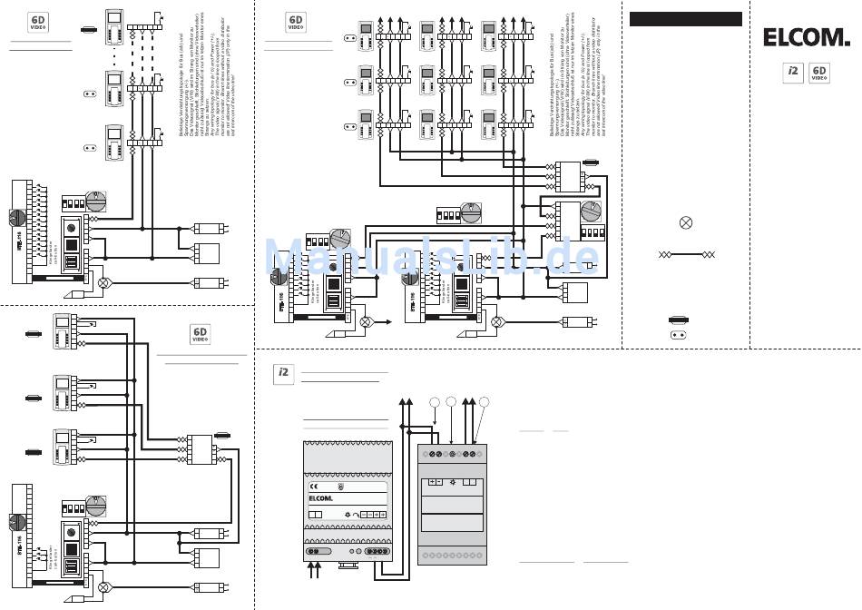
Die i2-Bus Strang-Versorgung BSV-200 dient der Spannungsversorgung des i2-Bus a/b Strangs.
Die Spannungsversorgung der BSV-200 erfolgt durch das Netzgerät NGV-860 mit 15VDC.
Die BSV-200 ist mit einem automatisch rückstellenden Überstrom- und Übertemperaturschutz ausgestattet.
Die Kontrollanzeige zeigt den aktuellen Zustand (Betrieb / Überlast) der BSV-200 an.
The i2-BUS line power supply BSV-200 serves to supply the i2-BUS a/b line with power.
The BSV-200 is supplied with 15 VDC power by the NGV-860 power supply unit.
The BSV-200 is equipped with an automatic resetting overcurrent and overtemperature circuit-breaker.
The LED indicates the current status (normal operation / overload) of the BSV-200.
Hinweis:
/
Note:
Beim Einschalten der Spannungsversorgung kann durch Spannungsschwankungen kurz die rote LED Überlast
anzeigen. Nach ca. 5 Sek. schaltet die BSV-200 dann auf Normalbetrieb.
The red LED Error (overload) can light up briefly when switching on the power supply due to fluctuations in the
voltage supply. The BSV-200 then switches to normal operation (OK) after about 5 seconds.
1.
Anschlussklemmen / Connection terminals
Klemmen: +/-
Eingangsspannung 15VDC
Terminals: +/-
Input voltage 15 VDC
2.
Kontrollanzeige /
LED indicator
Grün: Normalbetrieb ; Rot: Überlast
Green: Normal operation ; Red: Overload
3.
Anschlussklemmen /
Connection terminals
Klemmen: a/b
i2-Bus
Terminals: a/b
i2-BUS
Technische Daten
/
Technical data
Eingangsspannung /
Input voltage:
15 VDC / In = 2xIOut
Ausgang i2-Bus /
Output i2-BUS:
17-22 VDC / 300 mA / 700 mA (30 sec.)
Maße(HxBxT) /
Dimensions (WxHxD):
92 x 52 x 63 mm
Platzbedarf /
Space requirement:
3 Einheiten /
Units
AN_i2-Systemuebersicht_DE_EN_110601
BUS
BSV-100/200 Anleitung
i2-BUS Strangversorgung
Systemübersicht
BSV-100/200 Manual
i2-BUS Line power supply
System summary
Weitere Informationen unter:
For more information, visit:
www.elcom.de
Hotline: hotline@elcom.de
Technische Änderungen, Irrtümer
und Druckfehler vorbehalten.
Technical additions and printing
errors do not constitute grounds
gesteckt
for any claims to damages.
pushed in
offen
Art.Nr.: 0221172
pulled out
loading

Inhaltszusammenfassung für ELCOM BSV-200

  • Seite 1 Die Kontrollanzeige zeigt den aktuellen Zustand (Betrieb / Überlast) der BSV-200 an. Adr. 0/1 The i2-BUS line power supply BSV-200 serves to supply the i2-BUS a/b line with power. The BSV-200 is supplied with 15 VDC power by the NGV-860 power supply unit.
  • Seite 2 Voltage present in the primary line Group adress Group adress Adr. 0/3 Anschlußklemmen / Terminal clamps Klemme a/b: ELCOM i2-BUS Hauptstrang Terminal a/b: ELCOM i2-BUS primary line Tastenexpander Tastenexpander Platzbedarf im Verteiler: 9 Einheiten Button expander Button expander ELCOM. Space requirements in the distribution board...

Diese Anleitung auch für:

Bsv-100